スタッフブログ
【新入社員ブログ】今週もお仕事がんばりました!vol.015
こんにちは、新入社員の櫻井です!
前回ブログ(vol.014)に引き続き、今回もハウセットの【夏休み子供向けイベント】についてご紹介です!
今週はリフォームプランナー体験「リビングダイニング編」!
イベントの内容は、子供部屋・リビングダイニング・お住まいのお家より
お部屋を選んでいただいて、リフォームのプランを考えていただきます♪
子供部屋・リビングダイニングは、
こちらであらかじめ用意した間取りを使って、リフォームプランナーを体験いただけるので
気になる方いらっしゃる際、お気軽にご参加いただけます!
実際に私もリビングダイニングのプランを作成してみましたが
前回作成した子供部屋とは、また違う楽しさがありました!
「家族とくつろげる」リビングって
何がいるかな~?、どんな雰囲気がいいかな~?と
沢山悩んでしまいました^^;
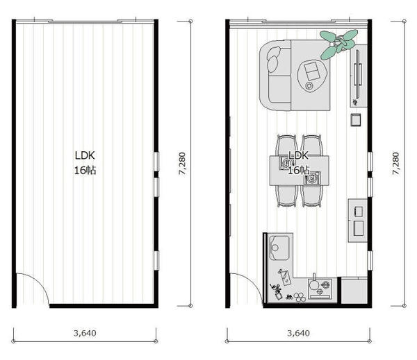
ちなみプランはこんな感じです!

〈プラン ベース・例〉
キッチンがオープンになっていて、
お子さまも一緒にお料理できるようイメージしたプランにしました!
また、途中アドバイスをいただきながら作業していたのですが
本や食器を置くと、より生活を想像しやすくなると教えていただきました。


〈小物を置く前と、後〉
実際に置く前・後とでは、印象がぜんぜん違いますよね・・・勉強になりました!
家具とカーテン、壁紙と小物の色をまとめて、
ゆっくりと時間を味わえる雰囲気をイメージしたお部屋をつくりました。
いかがでしょうか?^^
そして、ここからプランボードも作成しました!
〈プランボード〉
家具の木目や、小物の色と統一感を出し、
ぱっと見ただけでもどんなお部屋の雰囲気か分かるよう
大きくイメージパースを切り貼りしました♪
こちら実際にイベントにて体験いただけますので
ぜひお越しください!
イベントは8月21日(日)にハウセットの本社ビルにて行います!
時間や応募など、詳細はこちらをご覧くださいませ!
ご参加、お待ちしております!
お読みいただきありがとうございました。
2022.08.10
カテゴリー:今週もお仕事頑張りました!
- イベント (10)
- スタッフブログ (94)
- 今週もお仕事頑張りました! (93)
- 2025年10月 (1)
- 2025年6月 (2)
- 2024年6月 (2)
- 2024年5月 (6)
- 2024年4月 (1)
- 2024年3月 (5)
- 2024年2月 (5)
- 2024年1月 (6)
- 2023年12月 (5)
- 2023年11月 (6)
- 2023年10月 (1)
- 2023年9月 (7)
- 2023年8月 (5)
- 2023年7月 (6)
- 2023年6月 (4)
- 2023年5月 (9)
- 2023年4月 (9)
- 2023年3月 (6)
- 2023年2月 (5)
- 2023年1月 (3)
- 2022年12月 (4)
- 2022年11月 (5)
- 2022年10月 (4)
- 2022年9月 (4)
- 2022年8月 (5)
- 2022年7月 (5)
- 2022年6月 (7)
- 2022年5月 (9)
- 2022年4月 (4)
- 2022年3月 (5)
- 2022年2月 (2)
- 2022年1月 (1)
- 2021年12月 (4)
- 2021年11月 (1)
- 2021年10月 (1)
- 2021年9月 (2)
- 2021年7月 (1)
- 2021年5月 (4)
- 2021年4月 (1)
- 2021年3月 (1)
- 2021年1月 (1)
- 2020年12月 (1)
| 月 | 火 | 水 | 木 | 金 | 土 | 日 |
|---|---|---|---|---|---|---|
| « 10月 | ||||||
| 1 | 2 | 3 | 4 | 5 | 6 | 7 |
| 8 | 9 | 10 | 11 | 12 | 13 | 14 |
| 15 | 16 | 17 | 18 | 19 | 20 | 21 |
| 22 | 23 | 24 | 25 | 26 | 27 | 28 |
| 29 | 30 | 31 | ||||






