スタッフブログ
【新入社員ブログ】今週もお仕事がんばりました!vol.014
こんにちは、新入社員の櫻井です!
このたび、ハウセットで【夏休み子供向けイベント】の開催が決定いたしました!
イベントが『ぼくも、私も、リフォームプランナー』!!
アドバイスをもらいながら、パソコンで夢のおうちを作ってみよう!
という内容になっております♪

現在ハウセットのリフォームショップで仕事をしている私は
小さい頃から、ポストに投函される住宅チラシを見たり
自分で考えてみた間取りを紙に描くことが好きでした。
何度も描いては消して・・・を繰り返し
お家の間取りを自分の好きなように描くことが楽しみのひとつでした。
ですが、今ではアプリやツール、ソフト等も増えてきて、
自分の発想を形にしやすくなっていると思います!
そこから実際に住宅について興味をお持ちになるお子さまも多いのではないでしょうか?
今回イベントを行うことで
ご参加いただく皆様に、リフォームを身近に感じていただければと思います。
ソフトを手に入れて間取りを描く、となると
なかなか体験できないので、貴重な経験になるのではないでしょうか?^^
イベントでは、
あらかじめこちらで用意した子供部屋のプランに家具を配置していただくことができます。
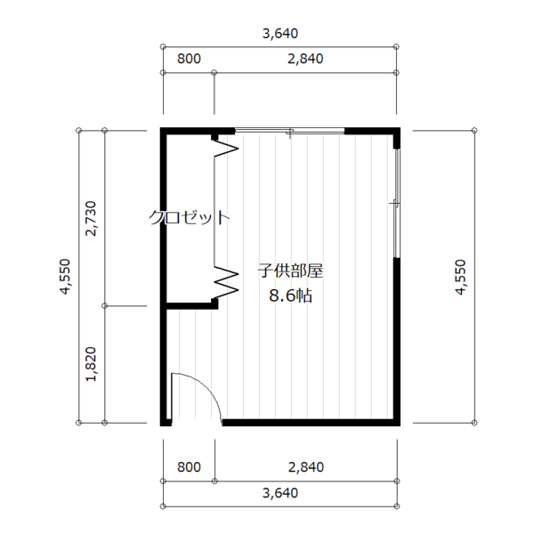
ちなみにこんな感じです!

〈プラン ベース〉

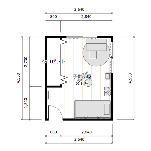
〈プラン例:A〉

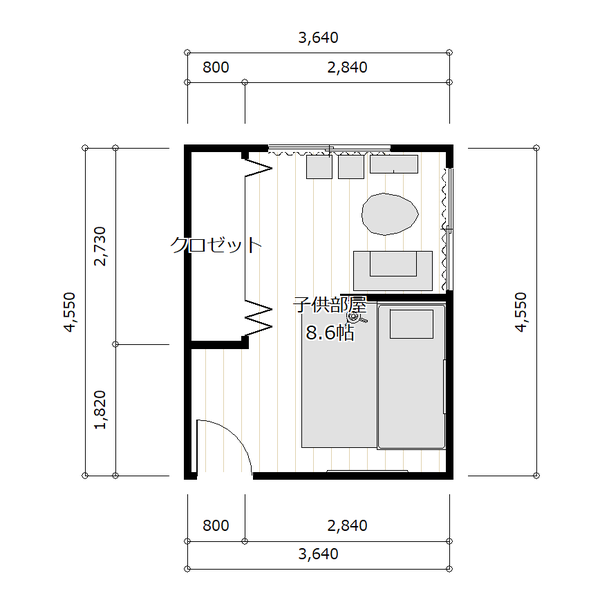
〈プラン例:B〉
また、イベントでは
現在のお住まいの間取りを自分で描いてみて、リフォームのプランを考たり、
ご一緒に参加いただくお父さま・お母さまもお楽しみいただけるよう
リビング・ダイニングを家族のくつろげる空間に出来るよう考えることも出来ますよ!
実際に私も、子供部屋のプランを作成してみました!
いかがでしょうか?^^
次のブログでは
リビングダイニング編もご紹介できれば、と思います!
お子さま目線でおうちを見てみるのも楽しそうですよね^^
お子さまの自由な発想でプランナー体験を
ぜひ夏休みにハウセットで体験してみませんか?
イベントは8月21日(日)にハウセットの本社ビルにて行います!
時間や応募など、詳細はこちらをご覧くださいませ!
ご参加、お待ちしております!
お読みいただきありがとうございました。
2022.08.06
カテゴリー:今週もお仕事頑張りました!
- イベント (11)
- スタッフブログ (96)
- 今週もお仕事頑張りました! (93)
- 2025年12月 (2)
- 2025年10月 (1)
- 2025年6月 (2)
- 2024年6月 (2)
- 2024年5月 (6)
- 2024年4月 (1)
- 2024年3月 (5)
- 2024年2月 (5)
- 2024年1月 (6)
- 2023年12月 (5)
- 2023年11月 (6)
- 2023年10月 (1)
- 2023年9月 (7)
- 2023年8月 (5)
- 2023年7月 (6)
- 2023年6月 (4)
- 2023年5月 (9)
- 2023年4月 (9)
- 2023年3月 (6)
- 2023年2月 (5)
- 2023年1月 (3)
- 2022年12月 (4)
- 2022年11月 (5)
- 2022年10月 (4)
- 2022年9月 (4)
- 2022年8月 (5)
- 2022年7月 (5)
- 2022年6月 (7)
- 2022年5月 (9)
- 2022年4月 (4)
- 2022年3月 (5)
- 2022年2月 (2)
- 2022年1月 (1)
- 2021年12月 (4)
- 2021年11月 (1)
- 2021年10月 (1)
- 2021年9月 (2)
- 2021年7月 (1)
- 2021年5月 (4)
- 2021年4月 (1)
- 2021年3月 (1)
- 2021年1月 (1)
- 2020年12月 (1)
| 月 | 火 | 水 | 木 | 金 | 土 | 日 |
|---|---|---|---|---|---|---|
| « 12月 | ||||||
| 1 | 2 | 3 | 4 | |||
| 5 | 6 | 7 | 8 | 9 | 10 | 11 |
| 12 | 13 | 14 | 15 | 16 | 17 | 18 |
| 19 | 20 | 21 | 22 | 23 | 24 | 25 |
| 26 | 27 | 28 | 29 | 30 | 31 | |






