スタッフブログ
【新入社員ブログ】今週もお仕事がんばりました!vol.011
2022/7/12
こんにちは、新入社員の櫻井です。
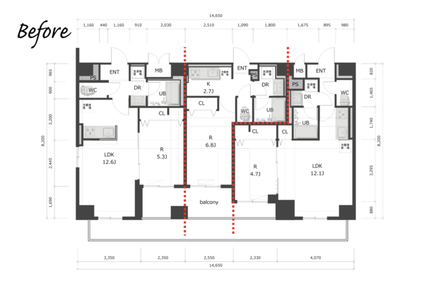
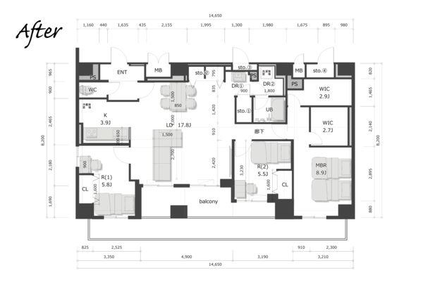
先日、賃貸3室を1室へまるっとリフォームを行っていたお部屋のお引渡しが完了いたしました!


〈before・after図面〉
〈before・after 廊下とR2〉

〈before・after LD〉
〈before・after KとR1〉
入社してから3カ月が経ちましたが
着工からお引渡しまでの過程を見たのは今回の現場が初めてでした。
実際のリフォーム現場を見るまでは具体的に想像することが出来ませんでしたが
設備、壁紙、照明などが揃って段々完成に近づくお部屋をみていると凄く楽しく、
これからお客様がどのように生活を送るのか想像すると、自分もワクワクしていました!^^
リフォーム現場での一連の流れを新人目線で現場リポートでお届けしていましたが、いかがでしたでしょうか。
リフォームにご興味お持ちいただけ、
今後の現場リポートやブログも楽しみにしていただけますと幸いです。^^
お読みいただきありがとうございました。
2022.07.11
〈現場リポート〉
【現場リポート①】賃貸3室を1室へまるっとリフォーム
【現場リポート②】賃貸3室を1室へまるっとリフォーム
【現場リポート③】賃貸3室を1室へまるっとリフォーム
【現場リポート④】賃貸3室を1室へまるっとリフォーム
【現場リポート⑤】賃貸3室を1室へまるっとリフォーム
カテゴリー:今週もお仕事頑張りました!
最近の投稿
カテゴリー
- イベント (11)
- スタッフブログ (96)
- 今週もお仕事頑張りました! (93)
アーカイブ
- 2025年12月 (2)
- 2025年10月 (1)
- 2025年6月 (2)
- 2024年6月 (2)
- 2024年5月 (6)
- 2024年4月 (1)
- 2024年3月 (5)
- 2024年2月 (5)
- 2024年1月 (6)
- 2023年12月 (5)
- 2023年11月 (6)
- 2023年10月 (1)
- 2023年9月 (7)
- 2023年8月 (5)
- 2023年7月 (6)
- 2023年6月 (4)
- 2023年5月 (9)
- 2023年4月 (9)
- 2023年3月 (6)
- 2023年2月 (5)
- 2023年1月 (3)
- 2022年12月 (4)
- 2022年11月 (5)
- 2022年10月 (4)
- 2022年9月 (4)
- 2022年8月 (5)
- 2022年7月 (5)
- 2022年6月 (7)
- 2022年5月 (9)
- 2022年4月 (4)
- 2022年3月 (5)
- 2022年2月 (2)
- 2022年1月 (1)
- 2021年12月 (4)
- 2021年11月 (1)
- 2021年10月 (1)
- 2021年9月 (2)
- 2021年7月 (1)
- 2021年5月 (4)
- 2021年4月 (1)
- 2021年3月 (1)
- 2021年1月 (1)
- 2020年12月 (1)
| 月 | 火 | 水 | 木 | 金 | 土 | 日 |
|---|---|---|---|---|---|---|
| « 12月 | ||||||
| 1 | 2 | 3 | 4 | |||
| 5 | 6 | 7 | 8 | 9 | 10 | 11 |
| 12 | 13 | 14 | 15 | 16 | 17 | 18 |
| 19 | 20 | 21 | 22 | 23 | 24 | 25 |
| 26 | 27 | 28 | 29 | 30 | 31 | |






