スタッフブログ
【現場リポート②】賃貸3室を1室へまるっとリフォーム
2022/5/30
こんにちは、櫻井です。
賃貸3室を1室へまるっとリフォーム②の更新になります。
本工事はタイトルにもある通り3室を1室へリフォームするので
まず最初の工事では、設備の撤去と壁の解体を行いました。


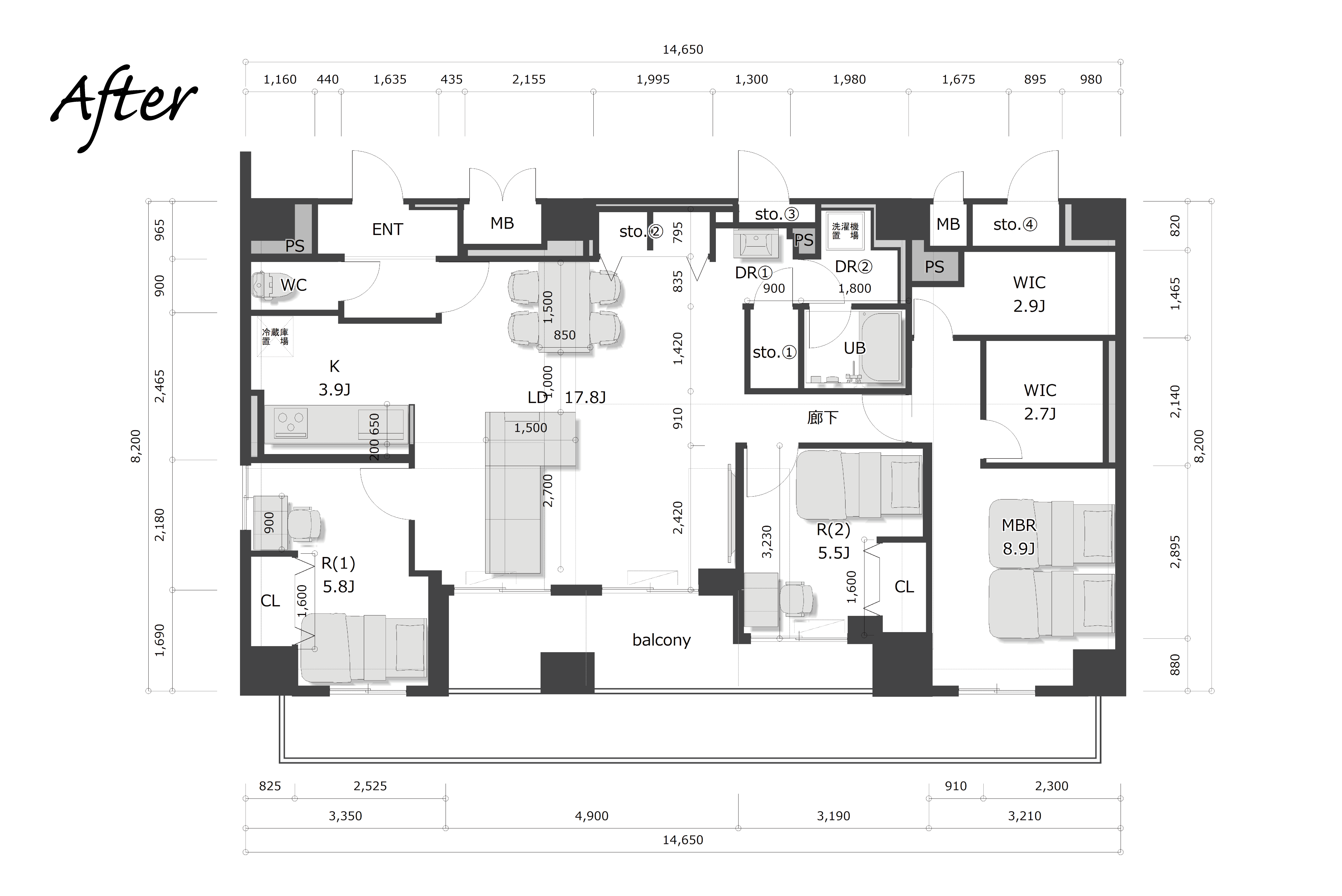
〈before・after図面〉

〈解体工事前 ※点線部分の壁を解体します〉
〈解体工事中〉
現場で見ていて思わず、こうしてマンションの隣のお部屋が見えるとは…!となってしまいました。^^
写真に写っている部分は今後リビングダイニングになる場所です。
ここからどのように家族のスペースへと変わっていくのか、自分もワクワクしています!
今後もお楽しみに!
〈これまでの現場リポート〉
【現場リポート①】賃貸3室を1室へまるっとリフォーム
カテゴリー:スタッフブログ
最近の投稿
カテゴリー
- イベント (10)
- スタッフブログ (94)
- 今週もお仕事頑張りました! (93)
アーカイブ
- 2025年10月 (1)
- 2025年6月 (2)
- 2024年6月 (2)
- 2024年5月 (6)
- 2024年4月 (1)
- 2024年3月 (5)
- 2024年2月 (5)
- 2024年1月 (6)
- 2023年12月 (5)
- 2023年11月 (6)
- 2023年10月 (1)
- 2023年9月 (7)
- 2023年8月 (5)
- 2023年7月 (6)
- 2023年6月 (4)
- 2023年5月 (9)
- 2023年4月 (9)
- 2023年3月 (6)
- 2023年2月 (5)
- 2023年1月 (3)
- 2022年12月 (4)
- 2022年11月 (5)
- 2022年10月 (4)
- 2022年9月 (4)
- 2022年8月 (5)
- 2022年7月 (5)
- 2022年6月 (7)
- 2022年5月 (9)
- 2022年4月 (4)
- 2022年3月 (5)
- 2022年2月 (2)
- 2022年1月 (1)
- 2021年12月 (4)
- 2021年11月 (1)
- 2021年10月 (1)
- 2021年9月 (2)
- 2021年7月 (1)
- 2021年5月 (4)
- 2021年4月 (1)
- 2021年3月 (1)
- 2021年1月 (1)
- 2020年12月 (1)
| 月 | 火 | 水 | 木 | 金 | 土 | 日 |
|---|---|---|---|---|---|---|
| « 10月 | ||||||
| 1 | 2 | 3 | 4 | 5 | 6 | 7 |
| 8 | 9 | 10 | 11 | 12 | 13 | 14 |
| 15 | 16 | 17 | 18 | 19 | 20 | 21 |
| 22 | 23 | 24 | 25 | 26 | 27 | 28 |
| 29 | 30 | 31 | ||||






