今回は、一等地の銀座5丁目の築50年ビルのワンフロアに
ネイル&マツエクサロンの店舗リフォームです(^▽^)/
他の階の営業時間を避けての工事となる為、夜間工事(22時~10時)となります。
急遽、お話が進んだ為、職人さん調整などなど…皆バタバタしています汗
まずは、リフォーム前の現状です。
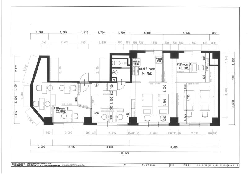
そして、プラン図です。

短期間工事となる為、現場もフル稼働しており、進みも早いですので、
今後頻繁にUPして行きます(^▽^)/
お楽しみに♪
| 月 | 火 | 水 | 木 | 金 | 土 | 日 |
|---|---|---|---|---|---|---|
| « 12月 | ||||||
| 1 | 2 | 3 | 4 | |||
| 5 | 6 | 7 | 8 | 9 | 10 | 11 |
| 12 | 13 | 14 | 15 | 16 | 17 | 18 |
| 19 | 20 | 21 | 22 | 23 | 24 | 25 |
| 26 | 27 | 28 | 29 | 30 | 31 | |
