スタッフブログ
【現場リポート】築40年マンションリフォーム/江東区枝川M様邸②
2022/3/17
こんばんは。押上店のスズキです。
マンションフルリフォーム現場リポート②です!
前回は、スケルトン(解体)状況をレポートしましたが、
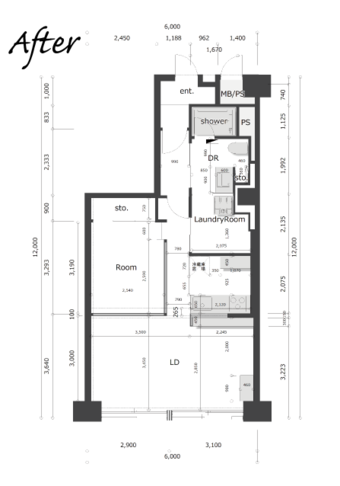
その後、、、大まかな間取りが出来上がりました。
解体後、あれこれと変更点はありましたが、
都度、お施主様にお知らせ→現地確認していただき、
結果的に良い方向へ進んでいます(^▽^)/
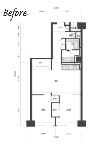
【図面】


【解体後】
【現状の木工進捗状況】
左側:寝室、右側:キッチン
寝室は、40㎝ほど床高を上げています。部分的に収納スペースも確保!
左写真:寝室への階段を設置中
右写真:シャワールームが排水の関係上高くなってしまった為、ステップを設置する事に。
今後の展開をお楽しみに(^▽^)/
【前回までの現地リポート】
カテゴリー:スタッフブログ
最近の投稿
カテゴリー
- イベント (12)
- スタッフブログ (97)
- 今週もお仕事頑張りました! (93)
アーカイブ
- 2026年4月 (1)
- 2026年3月 (1)
- 2025年12月 (2)
- 2025年10月 (1)
- 2025年6月 (2)
- 2024年6月 (2)
- 2024年5月 (6)
- 2024年4月 (1)
- 2024年3月 (5)
- 2024年2月 (5)
- 2024年1月 (6)
- 2023年12月 (5)
- 2023年11月 (6)
- 2023年10月 (1)
- 2023年9月 (7)
- 2023年8月 (5)
- 2023年7月 (6)
- 2023年6月 (4)
- 2023年5月 (9)
- 2023年4月 (9)
- 2023年3月 (6)
- 2023年2月 (5)
- 2023年1月 (3)
- 2022年12月 (4)
- 2022年11月 (5)
- 2022年10月 (4)
- 2022年9月 (4)
- 2022年8月 (5)
- 2022年7月 (5)
- 2022年6月 (7)
- 2022年5月 (9)
- 2022年4月 (4)
- 2022年3月 (5)
- 2022年2月 (2)
- 2022年1月 (1)
- 2021年12月 (4)
- 2021年11月 (1)
- 2021年10月 (1)
- 2021年9月 (2)
- 2021年7月 (1)
- 2021年5月 (4)
- 2021年4月 (1)
- 2021年3月 (1)
- 2021年1月 (1)
- 2020年12月 (1)
| 月 | 火 | 水 | 木 | 金 | 土 | 日 |
|---|---|---|---|---|---|---|
| « 4月 | ||||||
| 1 | 2 | 3 | ||||
| 4 | 5 | 6 | 7 | 8 | 9 | 10 |
| 11 | 12 | 13 | 14 | 15 | 16 | 17 |
| 18 | 19 | 20 | 21 | 22 | 23 | 24 |
| 25 | 26 | 27 | 28 | 29 | 30 | 31 |






