スタッフブログ
マンションリフォーム【オレの城】編
2021/1/5
リフォームはしたいけれど…どうしたのか?どんな事ができるのか?どこの会社へ頼めばいいのか?そんなお困りの方へ。
ハウセットなら、あなたのご希望を叶えるプランをご提案させて頂きます。
ご参考までに提案プランをご紹介します(^▽^)/
中古マンションを購入した独身30代男性、Kさん。趣味は、ファッション。
こだわりの服や靴に囲まれながら…どこにいても、いつでも見れる、そんな空間をご希望。
そんなKさんへのご提案です。
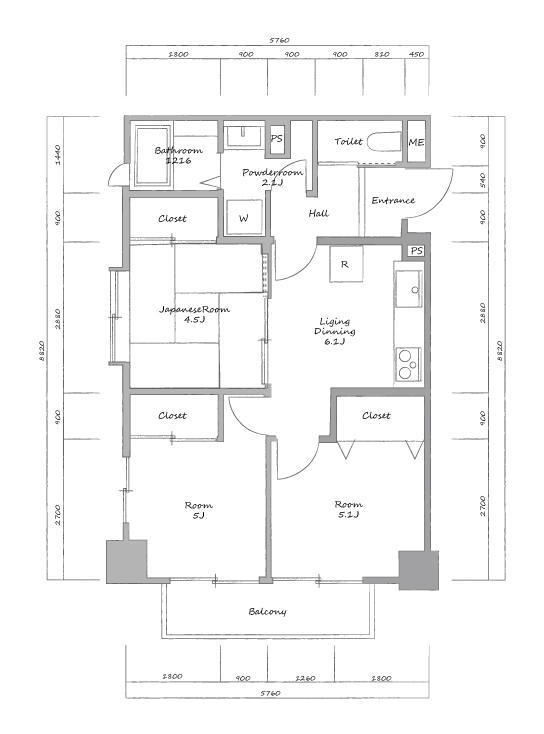
まずは、現状の間取り(下図)。昭和のあるあるの間取り。

ハウセットからのご提案はこちら(下図)
【Point1】
家の中心のWIC(ウォーインクローゼット)は、キッチン・リビング・ベッドルーム…どこからでも眺められる様、室内窓を設置。
臭いやほこりもシャットアウトした個室ながら、3方を内窓にする事で、まるでショーウィンドウの様に配置。
【Point2】
ワークスペースを配置。プライベートをきちんと分けつつ、好きを大切に。
いつでもKさんのコレクションである服を眺められつつ、社内でのリモートワーク中はプライベートが写り込まない配置に。

【イメージ①】

【イメージ②】

【イメージ③】

【イメージ④】

【参考価格】約650万円/50.8㎡
【関連施工例】マンションリフォーム【わたしの城】編(40代/女性)
現地調査・御見積は無料です。
まずは、あなたのどんな暮らしをされたいのかを聞かせてください。
【お問い合わせ】
お電話:0120-900-743(10:00-17:00 ※水曜定休)
HP: “無料でご相談”よりお願い致します。
カテゴリー:イベント
最近の投稿
カテゴリー
- イベント (12)
- スタッフブログ (97)
- 今週もお仕事頑張りました! (93)
アーカイブ
- 2026年4月 (1)
- 2026年3月 (1)
- 2025年12月 (2)
- 2025年10月 (1)
- 2025年6月 (2)
- 2024年6月 (2)
- 2024年5月 (6)
- 2024年4月 (1)
- 2024年3月 (5)
- 2024年2月 (5)
- 2024年1月 (6)
- 2023年12月 (5)
- 2023年11月 (6)
- 2023年10月 (1)
- 2023年9月 (7)
- 2023年8月 (5)
- 2023年7月 (6)
- 2023年6月 (4)
- 2023年5月 (9)
- 2023年4月 (9)
- 2023年3月 (6)
- 2023年2月 (5)
- 2023年1月 (3)
- 2022年12月 (4)
- 2022年11月 (5)
- 2022年10月 (4)
- 2022年9月 (4)
- 2022年8月 (5)
- 2022年7月 (5)
- 2022年6月 (7)
- 2022年5月 (9)
- 2022年4月 (4)
- 2022年3月 (5)
- 2022年2月 (2)
- 2022年1月 (1)
- 2021年12月 (4)
- 2021年11月 (1)
- 2021年10月 (1)
- 2021年9月 (2)
- 2021年7月 (1)
- 2021年5月 (4)
- 2021年4月 (1)
- 2021年3月 (1)
- 2021年1月 (1)
- 2020年12月 (1)






