スタッフブログ
飲食店舗リノベーション②/目黒区
2024/5/24
こんにちは。
ハウセット リフォームです。
目黒区飲食店舗リノベーション第2弾です!
今回は、プランのご紹介です。
前回のスケルトン状態から….
お施主様のご要望を詰め込んだプランです。
一部、広さと高さの関係で、実現不可となった部分もあります。
全てのご要望を叶える事がモットーですが…
出来ない事は現実的にあります。
これは、住宅でも同じ事です。(特にマンションです)
ただ、出来ません!ではなく、その代わりのご提案をする!
“お施主様と一緒につくる”ここは一番大切と思っています。
前置きが長くなりましたが、
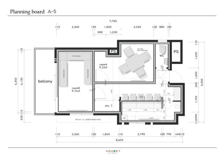
全体のプランをご紹介させて頂きますね。
【現状スケルトン状態】
【プラン図】


飲食店舗は、法律規制が多く、消防署や保健所等…確認・申請・検査があります。
ご検討の方は、きちんと対応するリフォーム業者で施工依頼する事が大切ですね。
カテゴリー:スタッフブログ
最近の投稿
カテゴリー
- イベント (12)
- スタッフブログ (97)
- 今週もお仕事頑張りました! (93)
アーカイブ
- 2026年4月 (1)
- 2026年3月 (1)
- 2025年12月 (2)
- 2025年10月 (1)
- 2025年6月 (2)
- 2024年6月 (2)
- 2024年5月 (6)
- 2024年4月 (1)
- 2024年3月 (5)
- 2024年2月 (5)
- 2024年1月 (6)
- 2023年12月 (5)
- 2023年11月 (6)
- 2023年10月 (1)
- 2023年9月 (7)
- 2023年8月 (5)
- 2023年7月 (6)
- 2023年6月 (4)
- 2023年5月 (9)
- 2023年4月 (9)
- 2023年3月 (6)
- 2023年2月 (5)
- 2023年1月 (3)
- 2022年12月 (4)
- 2022年11月 (5)
- 2022年10月 (4)
- 2022年9月 (4)
- 2022年8月 (5)
- 2022年7月 (5)
- 2022年6月 (7)
- 2022年5月 (9)
- 2022年4月 (4)
- 2022年3月 (5)
- 2022年2月 (2)
- 2022年1月 (1)
- 2021年12月 (4)
- 2021年11月 (1)
- 2021年10月 (1)
- 2021年9月 (2)
- 2021年7月 (1)
- 2021年5月 (4)
- 2021年4月 (1)
- 2021年3月 (1)
- 2021年1月 (1)
- 2020年12月 (1)
| 月 | 火 | 水 | 木 | 金 | 土 | 日 |
|---|---|---|---|---|---|---|
| « 4月 | ||||||
| 1 | 2 | 3 | ||||
| 4 | 5 | 6 | 7 | 8 | 9 | 10 |
| 11 | 12 | 13 | 14 | 15 | 16 | 17 |
| 18 | 19 | 20 | 21 | 22 | 23 | 24 |
| 25 | 26 | 27 | 28 | 29 | 30 | 31 |






